欢迎访问 陕西能源职业技术学院 建筑测绘学院!

当前位置首页 -> 学院动态 -> 正文

2018年陕西高校BIM安装入课培训

发布日期:2018-05-28  来源:   点击量:

为进一步加强学院BIM造价教学工作,提高教师BIM造价专业能力,学院安排贺静静老师、相贝老师参加由广联达科技股份有限公司举办的“2018 年陕西高校 BIM 安装入课培训班

培训内容主要包括BIM安装造价课程的开课经验以及BIM安装算量软件的实操练习。通过安装工程行业发展趋势、安装方向的开课建议以及课程内容、要求等方面做详细介绍。

IMG_20180526_093620.jpg

BIM 安装培训IMG_20180526_094446.jpg

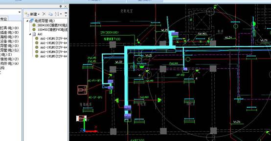
在软件实操部分,主要是软件使用、将二维图纸导入软件中,创建其三维模型,包括电缆桥架、电气设备、电线导管、导线、灯具等模型创建,并统计其工程量。

QQ图片20180711085608.jpg

QQ图片20180711085618.jpg

通过此次培训,了解 BIM造价在建筑行业中的应用场景,掌握 BIM造价专业能力,提高教师教学水平。

地址:中国·咸阳·文林路中段29号 

医学校区:西安市临潼区韩峪平峪路 

电话:029-33665111(党政办) 029-33665100(招办) 029-33665200(就业) 

学院网址:http://www.sxny.cn        学院邮编:712000 

© 陕西能源职业技术学院建筑测绘学院

扫一扫 关注

陕西能源职业技术学院